Spectrum can be shaped to the way you work. Customising and creating the experience for every person who enters your workplace has never been so easy. The characterful space provides everything a modern business needs.

  • Floorplan

  • Spaceplan

N floor
N floor
N floor
N floor
LEVEL
OFFICESQ FT
TERRACESSQ FT
eighth
5,512
1,066
seventh
6,930
141
sixth - UNDER OFFER
fifth - UNDER OFFER
courtyard - fourth
let

hbo
wb
cnn
TOTAL
12,442
1,207
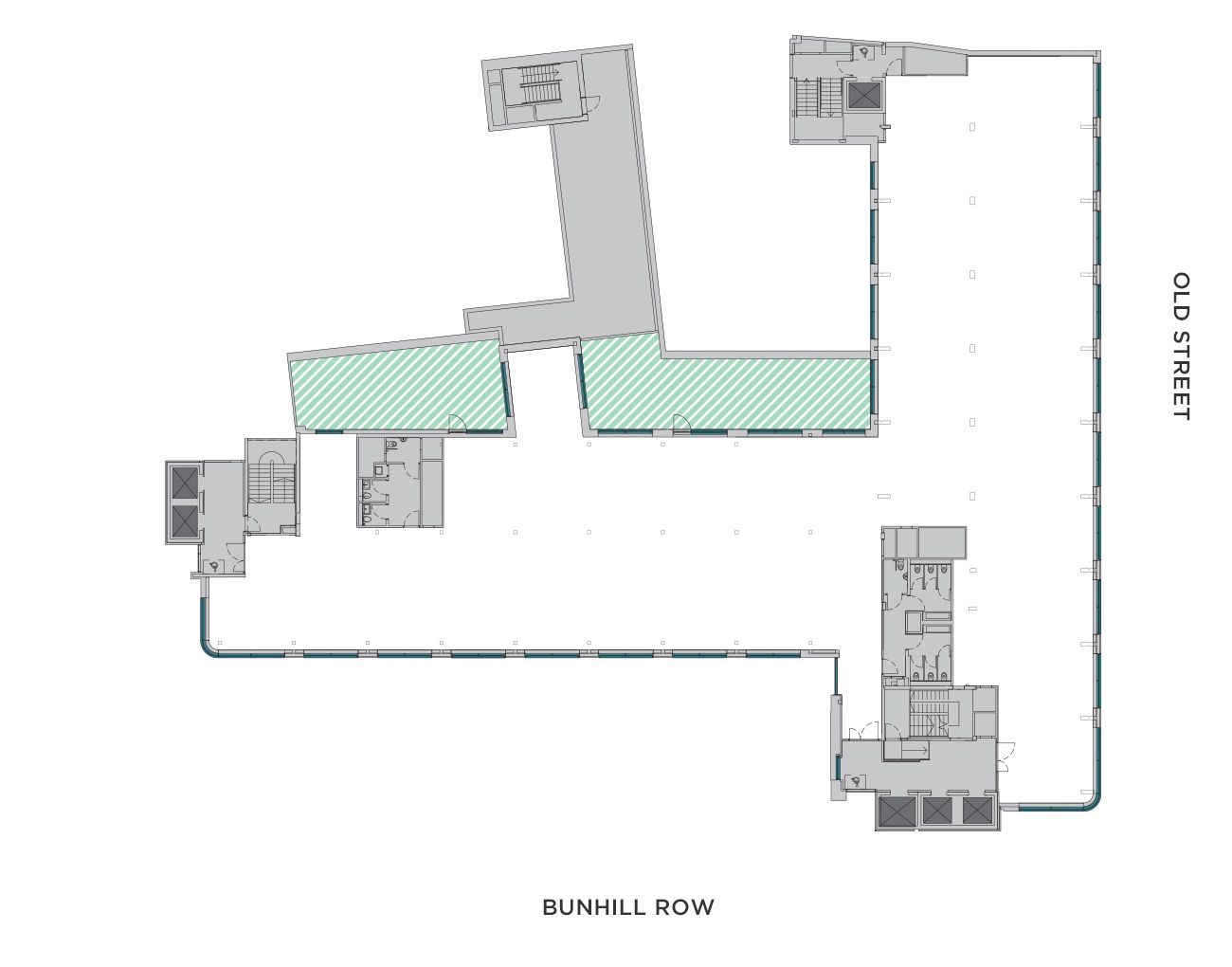
N

OPEN PLAN

5,512 sq ft / 512 sq m
open plan
Eighth Floor
1:10 sq m
Offices:
1
Desks:
48
Meeting Rooms:
2
Tea Point:
1
Breakout Area:
1
WCs:
7
Comms Room:
1
Informal Spaces:
2
Total Capacity:
50
N

OPEN PLAN

6,930 sq ft / 643 sq m
open plan
Seventh Floor
1:10 sq m
Offices:
1
Desks:
60
Meeting Rooms:
4
Tea Point:
1
Breakout Area:
1
WCs:
7
Comms Room:
1
Collaboration Areas:
2
Informal Spaces:
3
Phone Room:
1
Games Area:
1
Total Capacity:
62
Plans not to scale. For identification purposes only.

Summary specification

1:8 SQ M 1 person per 8 sq m occupancy capabilities, with toilets at 1:10 sq m
Air Conditioning VRF air conditioning
Lighting Surface mounted linear LED light fittings
Terraces Accessible external terraces on each floor
WCs WCs on each office floor
Lifts 7 x 12 person passenger lifts
1 x 13 person fireman’s lift
1 x 13 person cycle lift
Cycle spaces 258 cycle spaces, 20 remain unallocated
Showers 20 showers (9 male, 9 female, 2 accessible)
Lockers 261 lockers
BREEAM BREEAM 'Excellent'
EPC EPC Energy Rating A
WiredScore WiredScore 'Gold' accreditation

WiredScore is an international scheme that rates the infrastructure, connectivity and technology capabilities of office buildings. Wired certification is a trusted benchmark for commercial property, helping occupiers make an informed decision before signing a lease.

A Gold rating means a building has been designed to equip occupiers with:

  • Access to multiple, high-quality internet service providers
  • Access to a variety of cabling types, including fibre
  • Ample wireless connectivity
  • Back-up power resource
  • Well-protected connectivity sources

At Spectrum, we also offer:

  • Space to install private generators and back-up power equipment
  • Space on the roof for occupiers to install communications equipment
  • Free WiFi in the building’s common areas
  • A Standard Wayleave Agreement to help streamline future installations for new service providers